918²©ÌìÓéÀÖ

ÇéÐλ·±£½â¾ö¼Æ»®

ÇéÐλ·±£¹¤³Ì½â¾ö¼Æ»®

1650346920863168.png



BIMÓ¦ÓÃ1£º¹¤³Ìѡַ

Civil3DºÍInfraworksÈí¼þ¹¤¾ßµÄ×éºÏ £¬£¬£¬£¬£¬£¬£¬Äܹ»½«¶àÀàÊý¾Ýµ¼Èë¾ÙÐÐÕûºÏÆÊÎö £¬£¬£¬£¬£¬£¬£¬²¢¿ìËٵĽ¨ÉèÔ°µØÄ£×Ó¡¢ÍýÏëõè¾¶¡¢ÕûºÏÏîĿģ×ÓÓÚÒ»Ìå £¬£¬£¬£¬£¬£¬£¬¿ÉÍŽáµãÔÆÊý¾Ý £¬£¬£¬£¬£¬£¬£¬»ùÓÚÕæÊµ³¡¾° £¬£¬£¬£¬£¬£¬£¬¿ìËÙÍê³Éõè¾¶¹¤³Ì¡¢Ô°µØ¡¢ÓêË®/ÎÛË®ÅÅ·ÅϵͳÒÔ¼°Ô°µØÍýÏëÉè¼Æ¡£¡£¡£¡£¡£

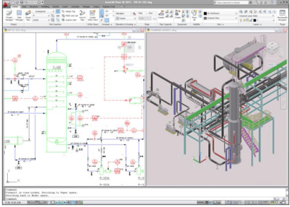
Plant 3DÈí¼þ¿ÉÒÔÔÙ×°±¸Ä£×Ó½¨É輰ͼֽÉè¼Æ½×¶ÎʵÏÖÕýÏòÉè¼ÆÁ÷³Ì £¬£¬£¬£¬£¬£¬£¬ÅäºÏRevitµÄÍÁ½¨ÕýÏòÉè¼ÆÄ£×Ó £¬£¬£¬£¬£¬£¬£¬µÖ´ï¶àרҵÕûºÏ¡¢ÅöײÆÊÎö¡¢Éè¼ÆÓÅ»¯µÈÊÂÇé £¬£¬£¬£¬£¬£¬£¬ÎªÉè¼ÆÊ¦ÌṩÓÅÒìµÄ½â¾ö¼Æ»®¡£¡£¡£¡£¡£

1651217716141643.png


1650347156524398.png

Infraworks¿ÉÊÓ»¯³¡¾°¼Æ»®ÍýÏëÉè¼Æ



BIMÓ¦ÓÃ2£º¸÷רҵЭͬ

1650347945568567.png



BIMÓ¦ÓÃ3£ºÊ¹ÓÃPlant 3DÈí¼þ¾ÙÐÐÁ÷³Ì¹¤³§Éè¼Æ

1650348102208996.png



BIMÓ¦ÓÃ4£ºÊÂÇéÁ÷¼°Êý¾Ý½»»¥

¼¯³ÉµÄAutoCAD P&IDÓëPlant 3DÇéÐÎ

? AutoCAD P&IDÓëPlant 3D¿É¹²ÏíÒ»¸ö¼òµ¥×ۺϵÄÏîÄ¿ £¬£¬£¬£¬£¬£¬£¬ÒÔ´ËÏ໥¾ÙÐÐÁ÷ͨµÄÊý¾Ý½»Á÷¡£¡£¡£¡£¡£

? Åä¹Ü¿ÉУÉóAutoCAD P&IDÊý¾Ý £¬£¬£¬£¬£¬£¬£¬¶ø¹¤ÒÕ¿ÉУÉóAutoCAD Plant 3DÊý¾Ý¡£¡£¡£¡£¡£

? ¶þÕß¹²ÏíͨÓõÄUIºÍÊÂÇéÁ÷ £¬£¬£¬£¬£¬£¬£¬ÈçÏîÄ¿ÖÎÀíÆ÷¡¢ÏîÄ¿½¨ÉèÓëÉèÖÃÒÔ¼°Êý¾ÝÖÎÀíÆ÷ £¬£¬£¬£¬£¬£¬£¬´Ó¶øÊ¹Óû§Äܹ»Ô½·¢ÇáËɵØÑ§Ï°ºÍʹÓᣡ£¡£¡£¡£

? ½èÖúP&IDÊý¾Ý½¨ÉèÈýά¹ÜµÀºÍ×°±¸Ä£×Ó £¬£¬£¬£¬£¬£¬£¬²¢Æ¾Ö¤Èýάģ×ÓÖеÄÔª¼þÑéÖ¤P&IDÊý¾Ý¡£¡£¡£¡£¡£

1650348182183501.png



BIMÓ¦ÓÃ5£º´ÓµãÔÆ½¨ÉèÄ£×Ó

¿ÉÒÔʹÓõãÔÆÊý¾Ý £¬£¬£¬£¬£¬£¬£¬µ¼Èëµ½Èí¼þÖÐ £¬£¬£¬£¬£¬£¬£¬´Ó¶ø¾ÙÐÐÄæÏòÄ£×ӵĽ¨Éè £¬£¬£¬£¬£¬£¬£¬´ËÒ»µãÔڽ϶àµÄ¸ÄÀ©½¨¹¤³ÌÖо­³£»£»£»£»£»£»£» £»áÓûñµÃ¡£¡£¡£¡£¡£ÌṩÁËԭʼÉè¼ÆÊý¾ÝµÄ¿É×·ËÝÐÔ¡¢¾«×¼ÐÔ¡£¡£¡£¡£¡£

1650348311813607.png



BIMÓ¦ÓÃ6£ºÐ­Í¬Éè¼Æ

Óû§¿ÉÒԲο¼NavisworksÄ£×Ó


ʹÓÃÒÑÓÐÏîÄ¿µÄÊý¾Ý

? PDS, PDMS, ÆäËûÃûÌÃ


Ö±½ÓʹÓÃRevitºÍInventorÄ£×Ó

? ͨ¹ýNavisworks Cache (NWC)

? µ± Revit/Inventor Ä£×ÓÐÞ¸ÄʱNWC×Ô¶¯¸üÐÂ

? ÎÞÐèµ¼Èë/µ¼³ö²Ù×÷

1650348376404726.png



BIMÓ¦ÓÃ7£º¿ÉÊÓ»¯¶¯»­Õ¹Ê¾»ã±¨

1650348422735251.png



À´°²ÏصڶþÎÛË®´¦Öóͷ£³§

±¾ÏîÄ¿´Ó£ºÔ¤´¦Öóͷ£¹¤¶Î¡¢Éî¶È´¦Öóͷ£¹¤¶Î¡¢Éú»¯´¦Öóͷ£¹¤¶Î¡¢Î²Ë®Åŷż°ÎÛÄà´¦Öóͷ£¹¤¶ÎµÈ £¬£¬£¬£¬£¬£¬£¬Õë¶ÔÎÛË®´¦Öóͷ£Á÷³Ì £¬£¬£¬£¬£¬£¬£¬½ÓÄÉ3DmaxÈí¼þ·ï»ËÁ÷Ì幦Ч £¬£¬£¬£¬£¬£¬£¬¾ÙÐÐϸÄ嶯»­µÄÖÆ×÷¡£¡£¡£¡£¡£

1650348716302568.png

1650348722684430.png

1650348729447358.png

1650348734996623.png

1650348740124382.png

1650348744141750.png

1650348747184266.png



3¡¢ÔËά½â¾ö¼Æ»®Ò»ÀÀ

1650348790180192.png



918²©ÌìÓéÀÖϵÁвúÆ·Ò»ÀÀ

1650348858183971.png

918²©ÌìÌÃ(ÖйúÇø)Æì½¢Ìü

ÈôÊÇÄúÐèÒªÎÒÃÇÌṩÐÐÒµ½â¾ö¼Æ»®
Ç벦´òÏ·½µç»°

4008616114

Contact Us

¡¾ÍøÕ¾µØÍ¼¡¿¡¾sitemap¡¿